野火电子论坛

 找回密码
 注册

QQ登录

只需一步,快速开始

查看: 20658|回复: 3

实际项目中关于AD电压采集的外围硬件电路问题

[复制链接]
发表于 2019-12-6 23:45:00 | 显示全部楼层 |阅读模式
本帖最后由 求求求求知 于 2019-12-6 23:58 编辑

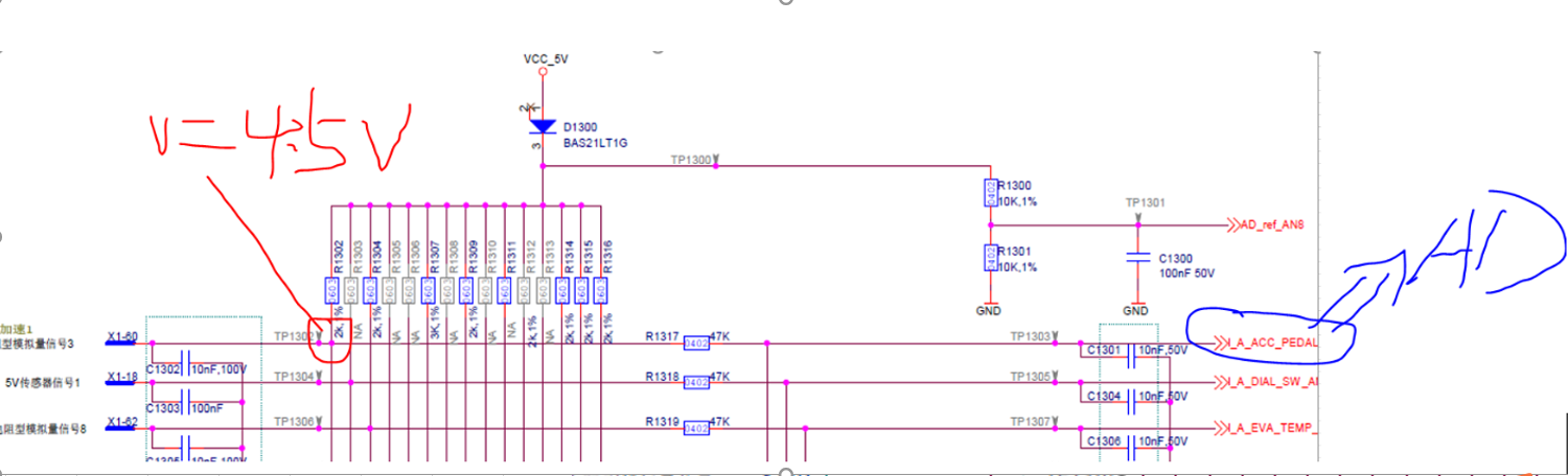
一个问题请教一下论坛的各位大神,如图是实际项目当中模拟电压采集的硬件电路图,现在以X1-60脚为例,该引脚接上拉2K电阻至VCC(5V),下拉的电阻为灰色,表示实际上没有下拉电阻。此时让X1-60脚悬空(就是不给它从外界输入物理信号),然后用万用表测得红圈处的电压值为4.49V,篮圈处表示输入到IO口。
我的问题是:1、图1中红圈处的电压值为什么是4.49V?是可以认为图2中黑色线路导通吗,我个人的理解是 IO口内部被认为具有较大阻抗值,所以输入到IO口的那段导线可以认为是断路(但是若认为断路,那测得的电压应该是5V开路电压),这一点不太明白?2、其中47K电阻在电路中起到了什么作用?3、在其他版块有看到坛友说到关于IO口内部对地的负载问题,一直想搞清楚这个IO内部到底可以等效成怎样的一种电路,在这里向各位坛友请教一下。有些个人理解有误的请指正^_^
PS:图3是完整了电路原理图







2.PNG
捕获.PNG
3.PNG

文中所述图片.pdf

356.91 KB, 下载次数: 92

文中所述图片

回复

使用道具 举报

发表于 2019-12-9 09:41:40 | 显示全部楼层
第1个我感觉有可能是二极管正向压降的问题,其他的就不太清楚了。
回复 支持 反对

使用道具 举报

 楼主| 发表于 2019-12-9 22:30:14 | 显示全部楼层
瞎眼灯 发表于 2019-12-9 09:41
第1个我感觉有可能是二极管正向压降的问题,其他的就不太清楚了。

是的,目前能大概估摸出是二极管的压降,如果有压降说明有通路,想知道这条通路是哪里呢?
回复 支持 反对

使用道具 举报

 楼主| 发表于 2019-12-11 22:44:26 | 显示全部楼层
走过路过帮忙解答一下
回复 支持 反对

使用道具 举报

您需要登录后才可以回帖 登录 | 注册

本版积分规则

联系站长|手机版|野火电子官网|野火淘宝店铺|野火电子论坛 ( 粤ICP备14069197号 ) 大学生ARM嵌入式2群

GMT+8, 2026-5-11 08:04 , Processed in 0.043484 second(s), 27 queries , Gzip On.

Powered by Discuz! X3.4

Copyright © 2001-2021, Tencent Cloud.

快速回复 返回顶部 返回列表